Ob familiäre Feier im kleinen Kreis oder großes Fest mit vielen Gästen – bei uns finden Sie den passenden Rahmen für unvergessliche Momente. Die Hütter Schmelze verbindet den Charme eines historischen Ortes mit einer einladenden, modernen Atmosphäre und bietet Ihnen vielseitige Möglichkeiten zur individuellen Gestaltung Ihrer Veranstaltung.
Von Geburtstagen, Hochzeiten und Jubiläen bis hin zu Firmenfeiern und kulturellen Events – wir begleiten Sie auf dem Weg zu einer rundum gelungenen Veranstaltung. Unsere flexiblen Räumlichkeiten und das stilvolle Ambiente sorgen dafür, dass Sie und Ihre Gäste sich vom ersten Moment an wohlfühlen.
Lassen Sie Ihre Ideen Wirklichkeit werden – in der Hütter Schmelze, wo besondere Anlässe ihren perfekten Platz finden.
Willkommen in der Hütter Schmelze
Die Verwandlung:
Ein Veranstaltungsort für Wildbergerhütte entsteht.
Aus dem ehemaligen Sängerheim wird die
"Hütter Schmelze"
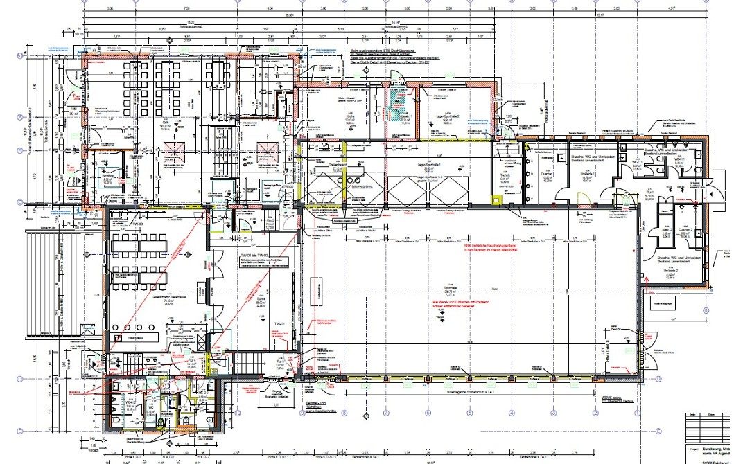
Bereich Turnhalle:
- Energetische Sanierung der Turnhalle
- Anbau für Technik und Lagermöglichkeiten
- neuer Thekenbereich
- neue zweiflügelige Fluchttür
Anbau Vereinsheim:
- mit Treppe zur neuen Theke unten und Hublift
- Anbau mit Küche und Abstellraum
Altes Sängerheim Bestand:
- energetische Sanierung
- Sanierung der vorh. Räumlichkeiten
- Küche wird WC-Bereich
- Bühne von allen Seiten nutzbar
- neue Trennwand zwischen Bühne und Halle
Untergeschoss:
- Sanierung der Umkleiden, Duschen und WCs
- Bar wird zum Jugendtreff mit Zugang über neue Außentreppe
Das Ziel der Umbaumaßnahmen ist die energetische Sanierung mit neuer Beheizung und eine multifunktionale Nutzung für Sport, kleine Veranstaltungen, große Veranstaltungen (privat und öffentlich) sowie der Jugendtreff









